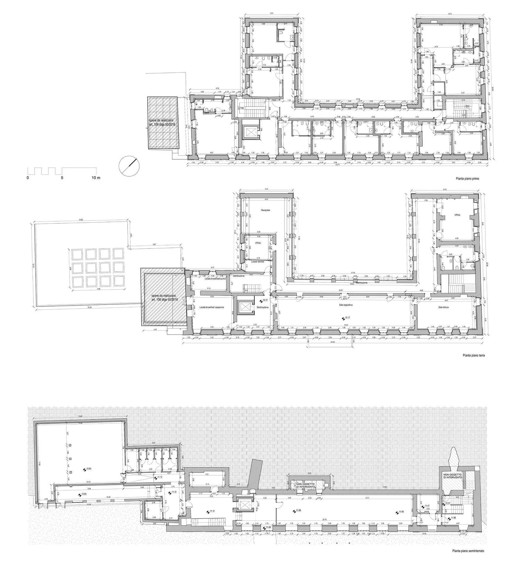
Villa Melano nasce come convento dei Cappuccini nel 1601, rifunzionalizzata nel corso del XIX secolo a villa di delizie dalla famiglia Melano, la quale ne modifica radicalmente la configurazione secondo il gusto ottocentesco. Verso la fine dell’Ottocento, la proprietà fu donata all’Ospedale Maria Vittoria di Torino per essere utilizzata come struttura destinata agli invalidi di guerra. Con il tempo, gli elevati costi di gestione ne causarono il graduale abbandono, fino a quando il complesso passò al Comune di Rivoli. Il progetto di recupero e restauro del complesso è articolato su tre lotti principali: La Villa Antica, destinata a funzioni alberghiere e ricettive; La Palazzina Svizzera, che accoglie residenze per artisti e l’alloggio del custode, a supporto della gestione dell’intero complesso; infine L’ex Citroniera è stato pensato per diventare uno spazio polifunzionale. Questi tre manufatti vengono messi in relazione tra di loro tramite la progettazione degli spazi esterni e delle aree verdi pertinenziali, che legano gli elementi architettonici in un unico insieme paesaggistico. I lavori previsti nell’ambito del progetto di manutenzione straordinaria, sia per la parte edile sia per quella impiantistica, si inseriscono in una strategia di sostenibilità ispirata ai principi del protocollo GBC Historic Building e ai Criteri Ambientali Minimi per l’edilizia pubblica.
Rivoli-Torino, 2023-In corso
Committente: Città di Rivoli
Importo Lavori: 9.110.000 €
Progetto esecutivo architettonico: Giovanni Durbiano, Isolarchitetti
Progetto esecutivo strutturale e impiantistico: MCM Ingegneria Srl
Edificio vincolato ai sensi del Dlgs 42/2004










