Villa Melano, Rivoli: recupero e valorizzazione

L'immagine mostra una facciata di un edificio in fase di ristrutturazione, probabilmente un esempio di restauro di una struttura storica. Ecco alcuni dettagli evidenti: Stile architettonico: L'edificio presenta uno stile tradizionale che richiama l'architettura half-timbered (a traliccio di legno), con un mix di legno e mattoni, tipico di alcune zone dell'Europa, come la Francia e la Germania. Le travi di legno in rilievo contrastano con le pareti in muratura, creando un effetto visivo distintivo. Materiali e finiture: La struttura combina il legno chiaro con mattoni rossi, che decorano la base dell'edificio, evidenziando le finestre e le porte. La parte superiore della facciata è decorata con un bordo intagliato di legno, che aggiunge un tocco di eleganza e dettaglio artigianale. La presenza di una scalinata di impalcature suggerisce che il lavoro di ristrutturazione è ancora in corso. Finestrature: Le finestre sono incorniciate da travi di legno scuro, con un design semplice ma elegante, e sono ancora protette con pellicole di plastica che indicano che non sono ancora pronte per l'uso. Spazio verde: Davanti all'edificio, c'è una piccola area di terreno verde che appare incolta, ma probabilmente sarà riorganizzata o rifinita una volta completata la ristrutturazione. Questo edificio potrebbe essere parte di un progetto di recupero di un'area storica, volto a preservare il fascino tradizionale mentre si integrano soluzioni moderne per la funzionalità e la vivibilità.

Villa Melano, Rivoli: recupero e valorizzazione

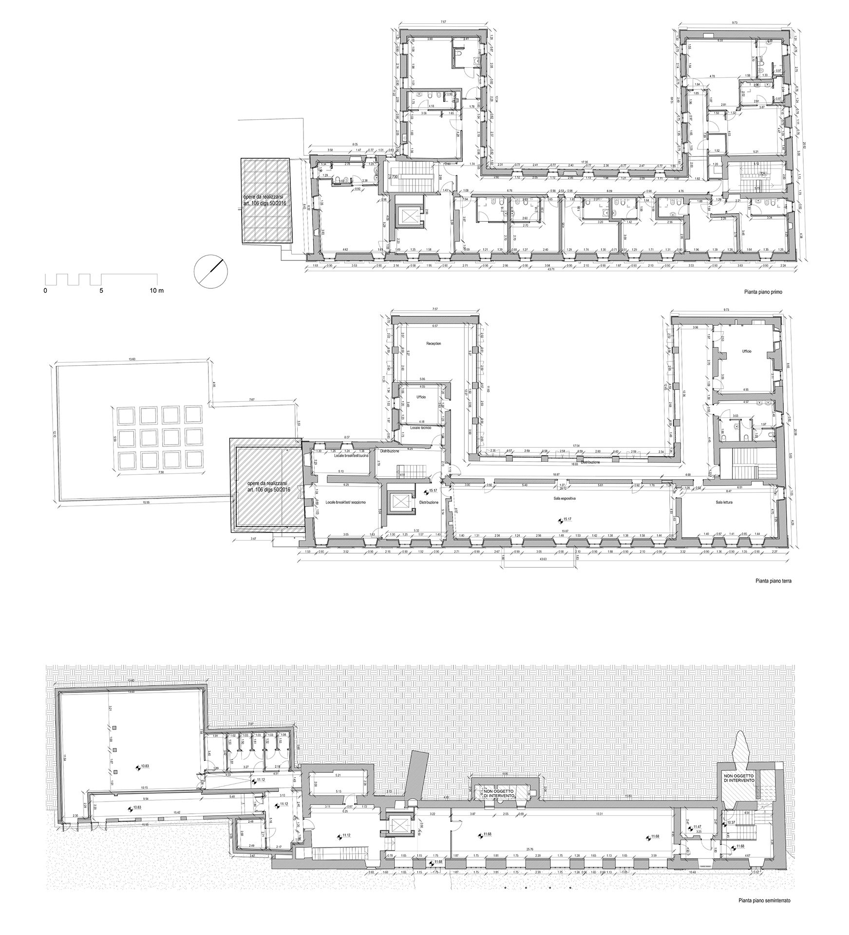
Villa Melano nasce come convento dei Cappuccini nel 1601, rifunzionalizzata nel corso del XIX secolo a villa di delizie dalla famiglia Melano, la quale ne modifica radicalmente la configurazione secondo il gusto ottocentesco.  Verso la fine dell’Ottocento, la proprietà fu donata all’Ospedale Maria Vittoria di Torino per essere utilizzata come struttura destinata agli invalidi di guerra. Con il tempo, gli elevati costi di gestione ne causarono il graduale abbandono, fino a quando il complesso passò al Comune di Rivoli. Il progetto di recupero e restauro del complesso è articolato su tre lotti principali: La Villa Antica, destinata a funzioni alberghiere e ricettive; La Palazzina Svizzera, che accoglie residenze per artisti e l’alloggio del custode, a supporto della gestione dell’intero complesso; infine L’ex Citroniera è stato pensato per diventare uno spazio polifunzionale. Questi tre manufatti vengono messi in relazione tra di loro tramite la progettazione degli spazi esterni e delle aree verdi pertinenziali, che legano gli elementi architettonici in un unico insieme paesaggistico.  I lavori previsti nell’ambito del progetto di manutenzione straordinaria, sia per la parte edile sia per quella impiantistica, si inseriscono in una strategia di sostenibilità ispirata ai principi del protocollo GBC Historic Building e ai Criteri Ambientali Minimi per l’edilizia pubblica.

Rivoli-Torino,  2023-In corso
Committente: Città di Rivoli
Importo Lavori: 9.110.000 €
Progetto esecutivo architettonico: Giovanni Durbiano, Isolarchitetti 
Progetto esecutivo strutturale e impiantistico: MCM Ingegneria Srl
Edificio vincolato ai sensi del Dlgs 42/2004

L'immagine mostra un cantiere di ristrutturazione di un edificio storico, con un focus su una serie di lucernari installati sul tetto. I lucernari sono montati su strutture metalliche, probabilmente realizzate in acciaio, e sembrano essere parte di un progetto di recupero o di aggiornamento dell'edificio. Sullo sfondo, si vede un edificio che sta subendo lavori di ristrutturazione, con una facciata visibilmente danneggiata e scaffalature per il supporto durante i lavori. L'area circostante sembra essere in fase di preparazione, con materiale da costruzione come mattoni, legno e altri strumenti visibili nelle vicinanze. Gli alberi e la vegetazione suggeriscono che l'edificio si trova in una zona relativamente tranquilla, lontano dal traffico urbano. La scena complessiva indica un intervento di rinnovamento di un edificio che coniuga la modernizzazione (con l'installazione dei lucernari) con il recupero della struttura esistente.

L'immagine mostra il tetto di un edificio storico in fase di ristrutturazione. Si può vedere una nuova copertura in tegole disposte in modo ordinato, che sta sostituendo o ripristinando quella esistente. L'edificio è parzialmente circondato da un'impalcatura rossa, che permette ai lavoratori di accedere alle zone più alte per completare il restauro e la ristrutturazione. In primo piano, possiamo notare una finestra decorata con dettagli architettonici e un elemento ornamentale sopra la finestra. La struttura stessa sembra essere in corso di restauro, con alcuni lavori di finitura sulla facciata inferiore visibile. Il tetto, in particolare, è stato quasi completato, mentre i lavori sulla facciata sembrano ancora in corso, con molte parti protette o smontate. Il contesto suggerisce che il restauro sta cercando di preservare il carattere storico dell'edificio, mantenendo gli elementi architettonici originali, come i dettagli intorno alle finestre e il tetto a forma di spiovente, mentre contemporaneamente viene eseguito il lavoro di modernizzazione.

L'immagine mostra una vista aerea di un complesso architettonico che si trova su una collina, con edifici storici e una vista panoramica sulla città circostante. In primo piano, si vedono diversi edifici con tetti a falde rosse, situati in una zona residenziale. Al centro della scena, si trovano alcuni edifici storici, con il loro stile architettonico distintivo, con cortili verdi e una disposizione che suggerisce un ampio spazio. Il complesso più grande visibile è composto da un lungo edificio a più piani, situato su un terreno verde, con giardini e alberi che ne circondano i bordi. Accanto a questo edificio, si può notare una struttura con impalcature, probabilmente in fase di restauro, mentre dietro si erge un altro edificio più alto e massiccio con una facciata monumentale. Il panorama circostante è caratterizzato da una città a bassa densità edilizia, con case residenziali disposte lungo le colline. La vegetazione, gli spazi verdi e i sentieri che collegano il complesso storico con la zona residenziale indicano che il sito è stato progettato per integrarsi armoniosamente con il paesaggio. Questa scena offre una panoramica di come l'edificio storico e la zona circostante possano essere rinnovati o ripristinati, con l'aggiunta di modernità e comfort, senza perdere il legame con la sua storia e architettura originale.

Il disegno mostra i piani di un edificio, probabilmente un complesso residenziale o funzionale, distribuito su più livelli. Sono visibili tre piani, che includono il piano terra, il piano primo e il piano seminterrato. Il piano terra si presenta con una distribuzione rettangolare, con spazi ampi e corridoi che collegano diverse stanze. Alcuni ambienti sono separati da pareti, come quelle delle stanze da letto o degli uffici. In fondo si trova un ampio cortile o un'area centrale, con alcuni spazi più aperti. Si possono notare anche stanze per servizi igienici e stanze per il personale, probabilmente progettati per ottimizzare la funzionalità del piano. La zona d'ingresso è facilmente accessibile e la disposizione suggerisce un flusso funzionale. Il piano primo, che segue una planimetria simile al piano terra, sembra essere destinato a ospitare ulteriori stanze, probabilmente camere da letto o uffici. La distribuzione delle stanze è analoga a quella del piano terra, ma con modifiche minori nella disposizione degli ambienti. Alcuni corridoi di collegamento permettono l'accesso alle stanze, con una chiara separazione tra le aree private e quelle di servizio. Il piano seminterrato presenta una zona più funzionale, forse destinata a spazi di servizio come cantine, magazzini o aree tecniche. L'ingresso al seminterrato è situato in una zona laterale dell'edificio. La disposizione suggerisce che questo piano sia utilizzato per supportare le attività del piano superiore e potrebbe ospitare elementi come impianti tecnologici, centrali termiche o spazi di archiviazione. Nel complesso, l'edificio sembra essere progettato per un utilizzo funzionale, con un buon flusso di movimento tra i vari piani e spazi. Ogni piano è ben diviso, con aree comuni e private. Inoltre, la presenza di un'area centrale con finestre ampie lascia intendere l'importanza di sfruttare la luce naturale e di creare un ambiente accogliente.

L'immagine mostra un ambiente interno moderno e ben illuminato, con un'atmosfera accogliente e funzionale. Si tratta di uno spazio dalle caratteristiche architettoniche distintive, come gli archi a tutto sesto e le ampie finestre che lasciano entrare molta luce naturale, creando un ambiente luminoso. Le pareti sono di un colore neutro, che aggiunge una sensazione di ampiezza all'area. Dettagli principali dell'ambiente: Arredi: Ci sono poltrone morbide e sedie moderne in metallo, che conferiscono un aspetto contemporaneo e comodo all'ambiente. Le poltrone a sacco, in particolare, sono l'elemento che aggiunge un tocco di informalità, suggerendo che l'ambiente possa essere adibito ad uno spazio di socializzazione, relax o studio. Illuminazione: La luce è diffusa uniformemente grazie ai faretti a soffitto, che mettono in risalto l'altezza e le curve del soffitto. L'illuminazione è posizionata in modo strategico lungo il soffitto, senza oscurare la vista esterna dalle finestre. Spazio: Il pavimento è piastrellato con piastrelle di grande formato, che contribuiscono a rendere l'ambiente arioso e moderno. L'ampio spazio consente un flusso libero di movimento, con tavoli e sedie disposti in modo funzionale ma informale. In generale, l'ambiente trasmette un senso di modernità, apertura e comfort, suggerendo che lo spazio possa essere utilizzato per attività collettive o come area comune all'interno di un edificio pubblico o di un centro di studio.

L'immagine mostra un bagno moderno e minimalista, caratterizzato da superfici lisce e tonalità neutre. Ecco i dettagli principali del design: Dettagli principali: Pareti e pavimento: Le pareti sono rifinite con piastrelle di cemento grigio chiaro, che donano all'ambiente un aspetto contemporaneo e industriale. Il pavimento è realizzato con piastrelle grandi e lisce che si abbinano perfettamente alle pareti. Doccia: La zona doccia è separata da una parete in vetro trasparente, dando l'impressione di un ambiente arioso. Il soffione della doccia è rotondo, elegante e minimalista, integrandosi bene nel design complessivo. Arredi: Il lavandino, con un design moderno, è appoggiato su un mobile sottostante in legno chiaro, con un'area di appoggio ordinata per i prodotti da bagno. Accanto al lavandino, sono visibili piccoli oggetti decorativi come piante e profumi. Toilette e bidet: Questi elementi sono in ceramica bianca e posizionati accanto l'uno all'altro, completando l'aspetto pulito e ordinato del bagno. Illuminazione: L'illuminazione è moderna e ben distribuita, con luci soffuse posizionate strategicamente per evidenziare le superfici e creare un'atmosfera rilassante. L'ambiente si caratterizza per il suo stile sobrio e minimalista, con l'uso di materiali moderni e una disposizione funzionale degli elementi. La combinazione di pareti in cemento e arredi eleganti e semplici crea un'atmosfera raffinata e tranquilla, perfetta per un bagno contemporaneo.

L'immagine mostra un arredamento moderno e funzionale di una camera da letto, con un'atmosfera accogliente e minimalista. Ecco i principali dettagli: Dettagli principali: Pareti e colori: Le pareti sono in tonalità neutre, con un contrasto interessante dato dalla parete di fondo di un caldo colore terracotta che aggiunge personalità all'ambiente. Questo colore accentua la zona del letto e crea un punto focale nella stanza. Letto: Il letto è semplice, con una testata in legno chiaro che si abbina ai mobili circostanti. Le lenzuola sono in tonalità neutre, con striature sottili che conferiscono un aspetto rilassato. Illuminazione: Le luci sospese sopra i comodini sono moderne e minimaliste, creando un'illuminazione funzionale senza appesantire l'ambiente. Scrivania: Una scrivania minimalista in legno chiaro è posizionata in un angolo della stanza, con un laptop e alcuni libri. La sedia verde brillante offre un contrasto interessante e vivace, aggiungendo un tocco di colore all'ambiente. Dettagli e accessori: Accanto al letto, una lampada da tavolo e una foto in cornice decorano la superficie del comodino, aggiungendo personalità e un tocco di comfort alla stanza. Aspetto generale: La stanza è progettata per essere pratica e accogliente, utilizzando linee pulite e colori tenui. L'uso di arredi semplici e funzionali, come la scrivania e il letto, crea un ambiente perfetto per il relax e il lavoro. Il contrasto tra la parete terracotta e gli altri elementi più chiari rende la stanza interessante ma non troppo invadente.

L'immagine mostra un ambiente di lavoro moderno e funzionale, probabilmente un ufficio o una sala di archiviazione. Ecco una descrizione dei dettagli: Dettagli principali: Luce naturale: I lucernari sul soffitto permettono una buona quantità di luce naturale, che illumina la stanza e crea un'atmosfera più ariosa e confortevole. Mobili: I tavoli sono realizzati con una struttura metallica semplice e moderna, con un design minimale e funzionale. Sono perfetti per un ambiente dove è necessario spazio per lavorare o archiviare documenti. Pareti e colori: Le pareti sono di un colore grigio chiaro, con un accento di contrasto dato dalla libreria a scaffali metallici che ospita file e documenti. L'ambiente ha un aspetto pulito e ordinato, con una sensazione di ordine e precisione. Archiviazione e scaffali: Sul lato sinistro della stanza, una serie di scaffali metallici allineati ordinatamente offrono un ampio spazio di archiviazione. Questo suggerisce che la stanza potrebbe essere utilizzata per archiviare documenti o materiale di lavoro. Arredi essenziali: Non ci sono decorazioni o arredi superflui, il che contribuisce a mantenere l'ambiente ordinato e funzionale. Le porte sono semplici, senza decorazioni evidenti, mantenendo il focus sull'utilizzo pratico dello spazio. Aspetto generale: L'ambiente ha un design minimalista, con linee semplici e arredi funzionali. L'illuminazione naturale e l'uso di materiali come il metallo e il legno chiaro contribuiscono a creare un'atmosfera luminosa, accogliente e professionale. Questo tipo di spazio sarebbe ideale per attività che richiedono ordine e concentrazione.

L'immagine mostra un ambiente ampio e luminoso, probabilmente una sala dedicata ad attività artistiche o creative, come un laboratorio di pittura o una galleria d'arte. Ecco una descrizione dettagliata dell'ambiente: Dettagli principali: Struttura e materiali: Il soffitto è caratterizzato da archi in mattoni a vista che conferiscono un aspetto industriale e rustico. I mattoni sono un elemento architettonico distintivo che aggiunge carattere e storia all'ambiente, mentre le pareti sono in generale chiare, con una finitura liscia che contrasta con il soffitto. Illuminazione naturale e artificiale: La luce naturale entra abbondantemente grazie alle finestre a piombo, che permettono alla stanza di rimanere luminosa durante il giorno. La luce artificiale è fornita da faretti a binario, posizionati lungo il soffitto, che permettono di illuminare uniformemente lo spazio. Arredamento: La stanza è arredato in modo sobrio ma funzionale. Sono presenti tavoli alti in legno scuro e sedie alte in metallo, perfetti per attività di gruppo o per creare angoli di lavoro separati. La stanza ha anche delle cavalletti per dipingere, suggerendo che questo spazio sia destinato a creativi o artisti. Atmosfera: L'ambiente ha un'atmosfera rilassata, che favorisce la concentrazione e la creatività. La combinazione di materiali naturali come il legno e il mattone con l'illuminazione moderna crea un bilanciamento tra il vecchio e il nuovo, conferendo un senso di storicità senza rinunciare alla funzionalità. Uso dello spazio: La stanza sembra essere progettata per attività artistiche, con ampio spazio per lavorare, pitturare o fare lavori manuali. I tavoli alti e i cavalletti per dipingere sono un chiaro indicatore di un laboratorio creativo o di una sala d'arte. La disposizione aperta favorisce un ambiente collaborativo, mentre la luce naturale contribuisce a creare un'atmosfera stimolante.

L'immagine mostra un ampio corridoio moderno che si distingue per un'atmosfera elegante e accogliente. Ecco una descrizione dettagliata: Dettagli principali: Struttura e materiali: Il corridoio è caratterizzato da pareti dai colori caldi, in particolare una tonalità di viola sulla destra, che dona un aspetto vivace e moderno. Il soffitto è piatto e presenta faretti a incasso, che forniscono una luce uniforme e diffusa. Le porte, ben rifinite e di colore chiaro, creano un contrasto con le pareti scure. Finestra e luce naturale: Una grande finestra ad arco su un lato del corridoio permette l'ingresso di abbondante luce naturale, illuminando bene l'ambiente e proiettando ombre suggestive sul pavimento. La luce solare che filtra attraverso la finestra crea un'atmosfera calda e accogliente. Arredamento e funzionalità: Il pavimento è rivestito con piastrelle beige che completano il design moderno del corridoio, mantenendo l'area luminosa e facile da pulire. Un piccolo termoconvettore è visibile sul lato destro, il che suggerisce un sistema di riscaldamento nascosto e discreto. Persone: Due persone sono in movimento lungo il corridoio, una di loro porta una valigia, indicando che questo potrebbe essere un ambiente come un hotel o un ospedale. La presenza delle persone contribuisce a far sembrare l'ambiente più vivo e funzionale. Atmosfera: Il corridoio ha un'aria moderna e luminosa, con un buon equilibrio tra il design architettonico tradizionale (finestre e porte classiche) e l'uso di colori audaci come il viola. L'atmosfera è invitante grazie alla luce naturale e ai dettagli di design contemporanei.

L'immagine mostra un ampio e moderno spazio espositivo, probabilmente all'interno di una galleria d'arte. Ecco una descrizione dettagliata: Dettagli principali: Struttura e materiali: Il soffitto è a volta, realizzato con mattoni a vista che conferiscono un'atmosfera storica e rustica, mentre le pareti laterali sono lisce e dipinte in un colore chiaro, creando un contrasto elegante con il soffitto. Il pavimento è in piastrelle beige, creando un ambiente luminoso e pulito. Luce naturale: Una grande finestra, visibile a sinistra, lascia entrare una quantità abbondante di luce naturale che illumina la stanza e crea riflessi interessanti sul pavimento. Illuminazione artificiale: Le luci da incasso sul soffitto e i faretti direzionabili forniscono un'illuminazione diretta sui pezzi di arte esposti, facendo risaltare le sculture e gli oggetti presenti nell'ambiente. Esposizione d'arte: Al centro della stanza sono presenti delle sculture sospese su supporti metallici. Le opere d'arte hanno forme astratte e colorate, aggiungendo un tocco di modernità all'ambiente. Persone: Ci sono due persone che esplorano l'esposizione, una sta osservando una scultura mentre l'altra si sta avvicinando a un'altra opera. Le persone sono vestite in modo casual, contribuendo a un'atmosfera rilassata e accogliente. Atmosfera: L'ambiente ha un'aria moderna e raffinata, con un perfetto equilibrio tra la struttura storica e l'arte contemporanea. L'illuminazione gioca un ruolo fondamentale nel mettere in risalto le opere esposte, mentre le ampie finestre e l'architettura a volta creano un'atmosfera ariosa e spaziosa. La presenza delle persone suggerisce un luogo di incontro culturale, invitando i visitatori a esplorare e apprezzare l'arte in un ambiente confortevole e stimolante.