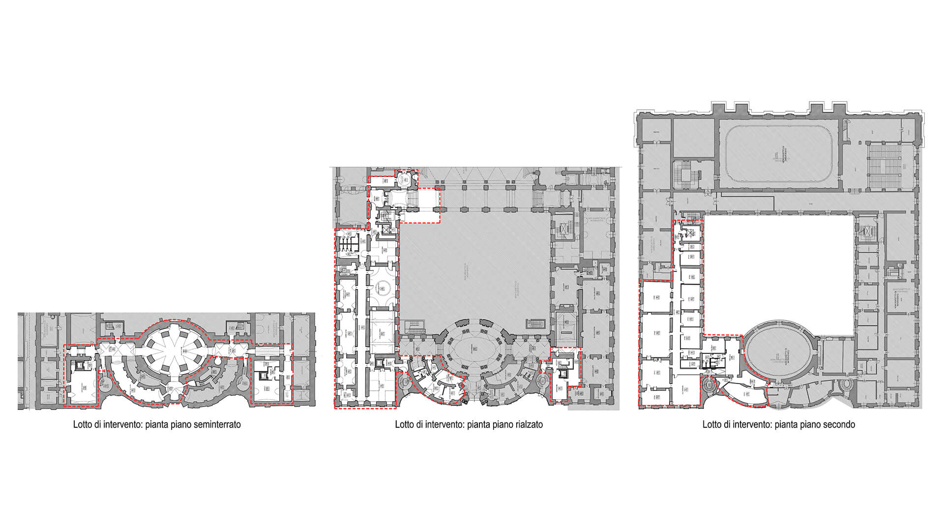
Il progetto di Restauro e Valorizzazione di Palazzo Carignano a Torino ha come obiettivo principale la rifunzionalizzazione della porzione posta al piano rialzato, attualmente occupata dagli uffici della Direzione Regionale dei Musei del Piemonte, al fine di recuperare tali ambienti, di notevole pregio storico-artistico, nel percorso di visita degli appartamenti dei Principi di Carignano. Gli uffici e le relative postazioni ora presenti al piano rialzato saranno trasferiti al secondo piano del palazzo.
Per rendere il nuovo percorso interamente percorribile da persone con disabilità motorie sono stati introdotti due nuovi corpi ascensori di collegamento tra il piano rialzato e il piano seminterrato, unendo così i locali delle ex cucine (al piano seminterrato) con i percorsi di visita degli appartamenti di mezzanotte e di mezzogiorno.
Torino, 2022 – 2025
Committente: Direzione Regionale Musei Piemonte
Importo delle opere: 2.500.000 €
Progetto architettonico e Direzione Lavori: Giovanni Durbiano (DO) e Isolarchitetti
Progetto strutturale: ICIS Srl
Progetto impianti: ONLECO Srl e PROECO
Edificio vincolato ai sensi del Dlgs 42/2004








