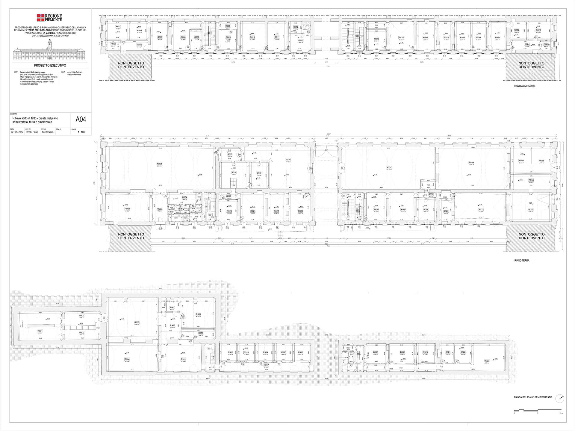
Il progetto prevede la realizzazione di un centro polifunzionale nella manica della Torre dell’Orologio all’interno del complesso del Borgo Castello, realizzato tre fine settecento e metà ottocento e interamente vincolato dalla Soprintendenza. Al piano sono previste attività di ristorazione e uno spazio fluido per eventi e feste. All’ammezzato si prevedono i servizi igienici e spazi per il personale.
Venaria Reale (Torino), 2020 – in corso
Committente: Regione Piemonte
Importo delle opere: 5.000.000 €
Progetto architettonico: Giovanni Durbiano e Isolarchitetti
Progetto strutturale e sicurezza: Sintecna Srl
Progetto impianti: MCM Ingegneria Srl
Progetto restauro: Nicola Restauri
Edificio vincolato ai sensi del Dlgs 42/2004








