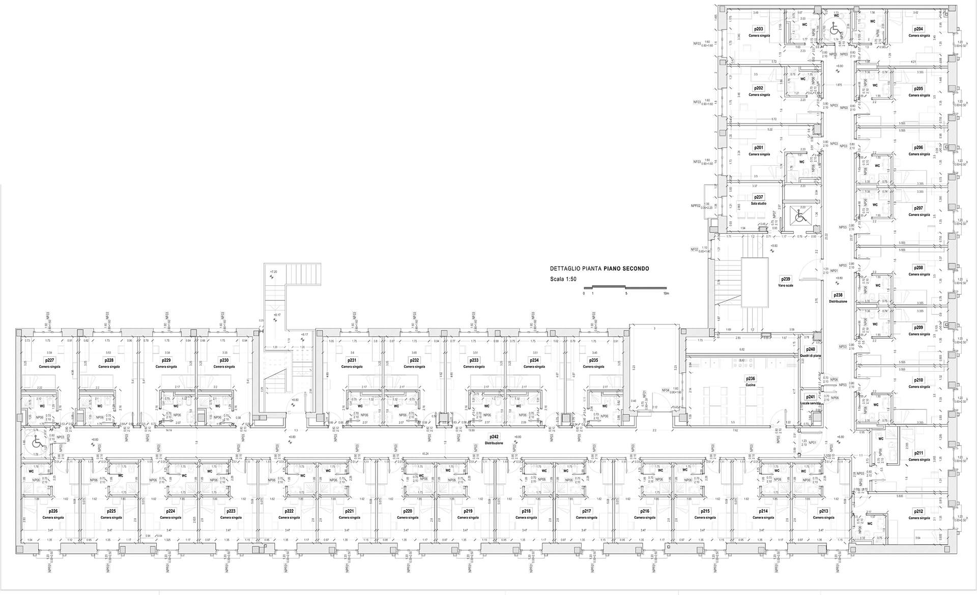
The building, built in 1965, is being radically renovated with the goal of reaching the highest standards of quality, accessibility, sustainability for students’ dorms.
The attic is being provided with a series of dormer windows and skylights in order to gain rooms. All rooms are provided with private bathroom and the kitchen and the study hall for each floor are being relocated and the attic hosts a hall for study and a hall for socialization of all the students’ community.
Torino, 2016 – 2022
Client: Collegio Renato Einaudi
Value of works: € 7.400.000
Architectural project: Giovanni Durbiano and Stefano Toscano
Structural project: ICIS Srl
Building services engineering: MCM Ingegneria Srl
Security: DEARCH













