Il progetto mira a valorizzare e rendere maggiormente fruibile il patrimonio delle collezioni geo-mineralogiche del Dipartimento di Ingegneria dell’Ambiente, del Territorio e delle Infrastrutture del Politecnico di Torino (DIATI), promuovendone il valore storico e scientifico e condividendolo con la comunità accademica e il pubblico. Le collezioni, costituite da rocce, minerali e macchinari storici legati alle attività minerarie, hanno nuclei originari risalenti ai primi decenni dell’Ottocento.
L’intervento ha permesso di realizzare un percorso espositivo continuo lungo i corridoi del dipartimento, per una superficie complessiva di circa 516 mq. L’obiettivo è ricostruire l’uniformità spaziale di ambienti oggi frammentati, definendo un itinerario chiaro e leggibile attraverso l’introduzione di pareti attrezzate, una nuova pavimentazione, controsoffitti e un sistema di illuminazione integrato.
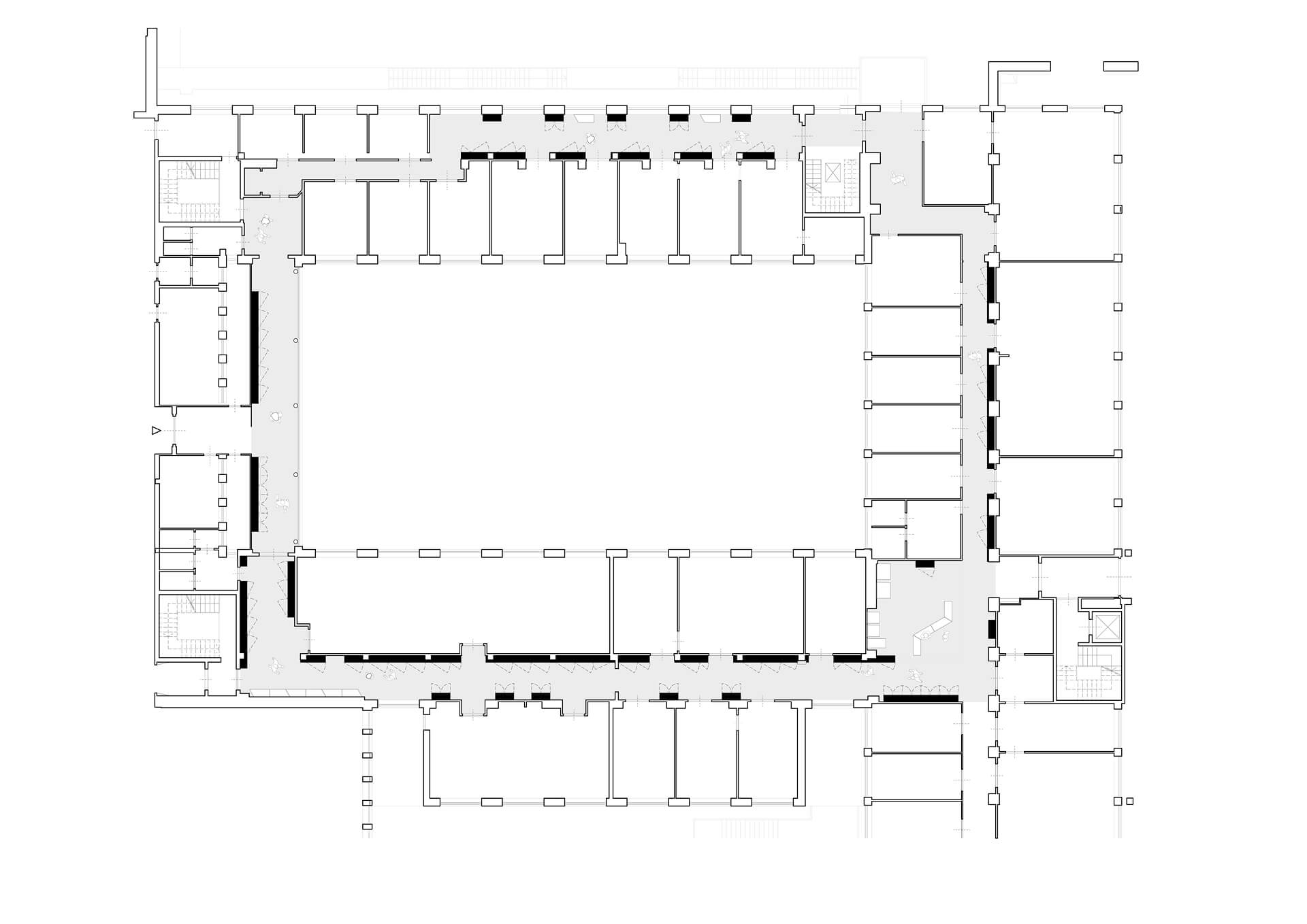
Gli spazi espositivi sono concepiti come parte integrante dei corridoi: teche ed espositori si inseriscono nelle pareti, configurate come pareti-attrezzate capaci di assolvere sia alla funzione espositiva sia a quella di deposito. L’alternanza tra pieni e vuoti ritma il percorso, mentre le superfici opache ospitano testi, infografiche e contenuti informativi legati alle collezioni e alle attività del dipartimento. Il layout segue la struttura “tipica” ad anello attorno a una corte centrale che caratterizza i dipartimenti del primo nucleo del Politecnico. Il percorso ad anello, pur attraversando aree con diversi livelli di utilizzo è stato unificato visivamente da finiture e arredi comuni. Il percorso inizia dall’ingresso, prosegue nell’area delle aule — la più pubblica —, attraversa la zona amministrativa, dove viene potenziata l’area ristoro come spazio relax, e continua nel corridoio degli uffici dei docenti, integrando espositori e sedute per l’attesa. Nel corso degli anni l’unitarietà dell’anello distributivo si è progressivamente indebolita a causa di interventi manutentivi e superfetazioni stratificate. Il progetto interviene per ricostruire una percezione spaziale coerente e continua, migliorando al contempo luminosità e comfort degli ambienti. A tal fine è stata eseguita una tinteggiatura uniforme delle pareti con tonalità chiare, la posa di una pavimentazione vinilica sovrapposta a quella esistente e la sostituzione delle porte opache con elementi vetrati, capaci di amplificare la luce naturale. Il comfort acustico è garantito dall’inserimento di pannelli fonoassorbenti sospesi, integrati con un sistema di illuminazione lineare. Il percorso espositivo è costituito da un sistema modulare di espositori coordinati — armadiature alte, teche su mobile e elementi bassi — pensato per ottimizzare costi, manutenzione e flessibilità. Il disegno delle facciate richiama concettualmente una sezione di galleria mineraria, con vetrine illuminate che enfatizzano i reperti. Ogni espositore integra una parte superiore dedicata all’esposizione e una inferiore destinata al deposito di materiali di servizio.
Torino, 2024
Importo delle opere: 200.000 €
Progetto architettonico: Giovanni Durbiano e Nicola Ricci

















